We can't find the internet
Attempting to reconnect
Something went wrong!
Attempting to reconnect
990 € / MES
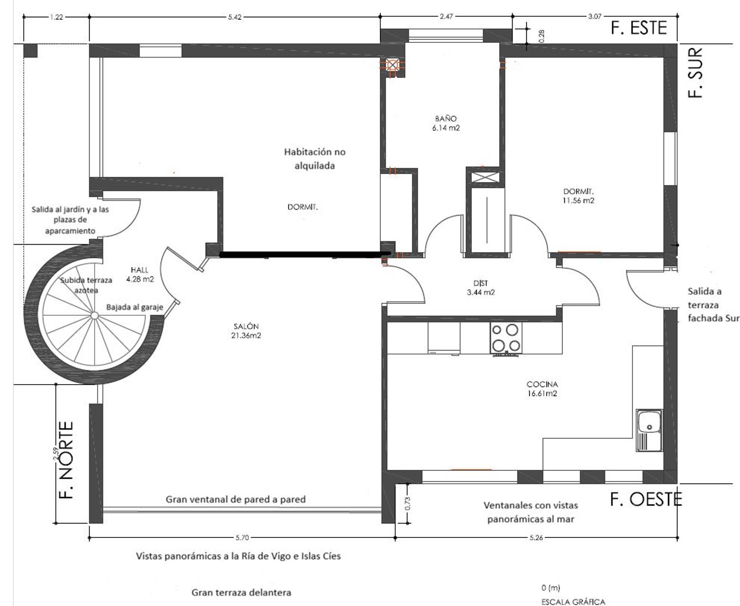
11 de diciembre de 2025Casa independiente en Subida á Madroa, 99
Características
- jardin
- parking
- terraza
- television
- suministros incluidos
Descripción
Disfrute de un remanso de paz con impresionantes vistas al mar y a las islas Cíes, así como a la actividad portuaria. La propiedad ofrece vistas nocturnas espectaculares de la ciudad de Vigo y su ría, especialmente en Navidad. Se encuentra a 10 minutos en coche del centro de Vigo, a 15 del aeropuerto y a 3 de la entrada de la AP-9. La habitación principal cuenta con cama de matrimonio, con opción a dos camas dobles, y se dispone de cuna y cambiador con bañera. En las cercanías, a menos de cinco minutos en coche, hay varios supermercados, y a tres minutos, farmacias, un centro de salud y cafeterías. También hay restaurantes de renombre a poca distancia. La vivienda incluye los gastos de consumos, salvo consumos excesivos. La propiedad ofrece múltiples espacios para relajarse, disfrutar y trabajar. Dispone de dos terrazas junto a la cocina: una soleada con vistas a la ría y otra con sombra natural de una parra y toldo, ambas equipadas con mesas y sillas y tomas de corriente. Una tercera terraza de 100m2 en la cubierta ofrece vistas inigualables al mar. El salón está equipado con TV y hay WiFi gratuito en toda la casa. Se alquila la planta baja de este chalet, con acceso a lavadero, un jardín de 500 m2 con barbacoa y juegos infantiles (casita, tobogán, cama elástica). Se ofrecen rutas de senderismo en los alrededores y la posibilidad de alquilar un kayak y bicicletas. El propietario, gran conocedor de la zona, puede proporcionar información y servicios de guía para descubrir lugares auténticos de Galicia.
Reportar un problema
Ayúdanos a crear un espacio seguro. Cuéntanos qué sucede con este anuncio.