We can't find the internet
Attempting to reconnect
Something went wrong!
Attempting to reconnect
900 € / MES
14 de diciembre de 2025Piso en calle Pateira, 3
Características
- aire acondicionado
- calefaccion
- ascensor
- parking
- trastero
Descripción
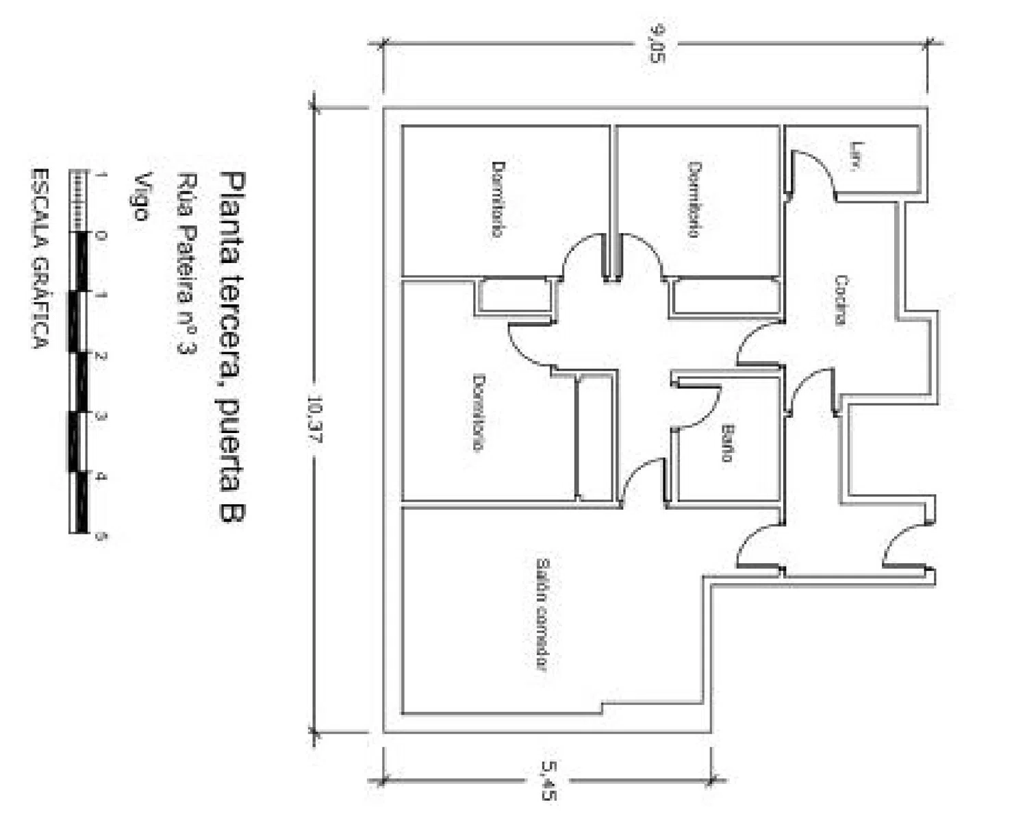
Se ofrece en alquiler un espacioso y luminoso piso, con orientación sur, lo que garantiza calidez y abundante luz natural. La vivienda es completamente exterior y se encuentra en excelente estado de conservación. Dispone de tres dormitorios, todos ellos equipados con armarios empotrados, y un amplio salón que ofrece vistas a la montaña. La cocina está totalmente equipada con electrodomésticos, y cuenta con un lavadero independiente. El baño completo incluye un plato de ducha con mampara. El inmueble presenta suelos de parquet recién pulidos, ventanas Climalit, aire acondicionado y calefacción individual de gas natural. Se alquila sin mobiliario e incluye una generosa plaza de garaje y una bodega anexa, ambas con acceso directo mediante ascensor. Ubicado en una zona tranquila y bien comunicada, ideal para familias, con servicios como guarderías, colegios, polideportivo con piscina municipal, biblioteca y escuela oficial de idiomas en las proximidades. La propiedad está adaptada para personas con movilidad reducida. Se ruega a las agencias abstenerse. Horario de contacto preferente: de lunes a viernes de 15:00 a 22:00 horas, y fines de semana de 10:00 a 22:00 horas.
Reportar un problema
Ayúdanos a crear un espacio seguro. Cuéntanos qué sucede con este anuncio.