We can't find the internet
Attempting to reconnect
Something went wrong!
Attempting to reconnect
1.750.000 €
25 de noviembre de 2025Piso en Barrio Lista
Características
- aire acondicionado
- calefaccion
- ascensor
- parking
- trastero
- terraza
Descripción
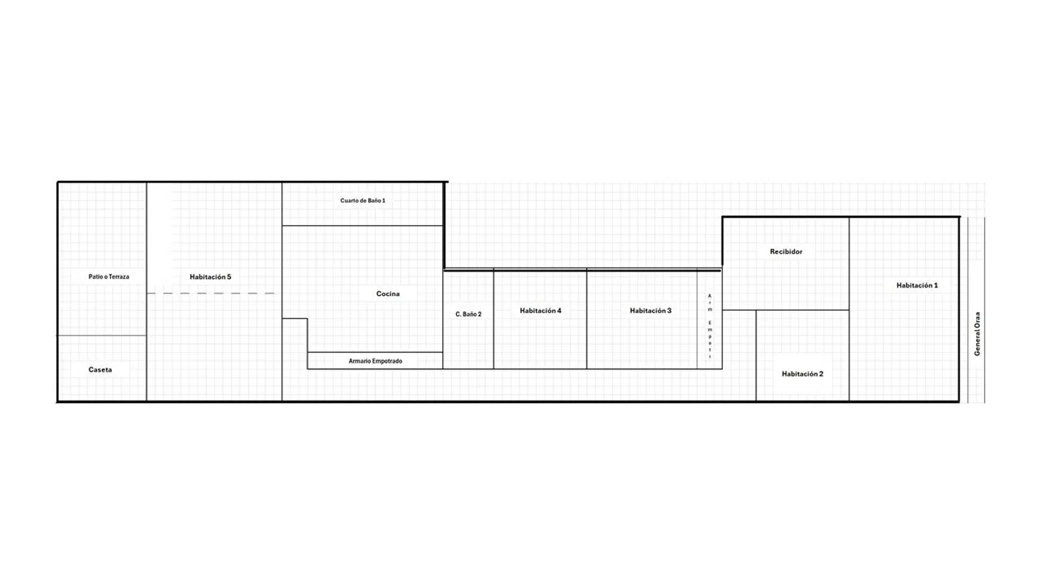
Se ofrece a la venta una vivienda singular de 193 m² en el prestigioso barrio de Salamanca, ubicada en un edificio con valor histórico. Este inmueble dispone de tres dormitorios espaciosos, uno de ellos con un vestidor o estudio anexo, dos baños completos, una cocina independiente de gran tamaño y un salón muy luminoso. Destacan sus techos altos de 3,30 metros, algunos con ornamentación, que proporcionan una sensación de amplitud y un estilo único. Todas las estancias gozan de gran luminosidad y espacio. Las ventanas oscilobatientes de alta calidad (marca Schüco) aseguran un excelente aislamiento y eficiencia energética. La propiedad incluye dos unidades de aire acondicionado tipo Split. Un punto fuerte es su patio privado de 20 m², accesible desde el salón, ideal para el ocio al aire libre, con una caseta de cristal para almacenaje y un toldo eléctrico. La distribución interior es práctica, con un pasillo central que organiza las zonas y garantiza privacidad. Cuenta con amplio espacio de almacenaje gracias a armarios empotrados, dos falsos techos y un trastero en la misma finca. Existe la opción de comprar una plaza de garaje en el edificio colindante. Situada en una planta baja exterior con altura de primer piso en su parte central, la vivienda es muy luminosa y está adaptada para personas con movilidad reducida. Ha sido renovada recientemente y está lista para habitar. El edificio ofrece servicio de portería y calefacción central con consumo individualizado. Su localización es excepcional, en una calle principal del distrito de Lista, con excelente conexión a transporte público (metro y autobús) y rodeada de todo tipo de servicios como tiendas, centros educativos, sanitarios, restaurantes y bancos. Una oportunidad inigualable para vivir en Madrid en una casa con historia, personalidad y máximo confort.
Otros pisos en venta similares en Madrid
Otros barrios en Salamanca, Madrid
Reportar un problema
Ayúdanos a crear un espacio seguro. Cuéntanos qué sucede con este anuncio.